Porzione di bifamiliare in vendita

San Mauro Torinese, Via Bezzecca - Oltrepo
€ 230.000
5 locali 5 locali
134 Mq 134 Mq
2 bagni 2 bagni

Porzione di bifamiliare in vendita

San Mauro Torinese, Via Bezzecca - Oltrepo

Descrizione annuncio

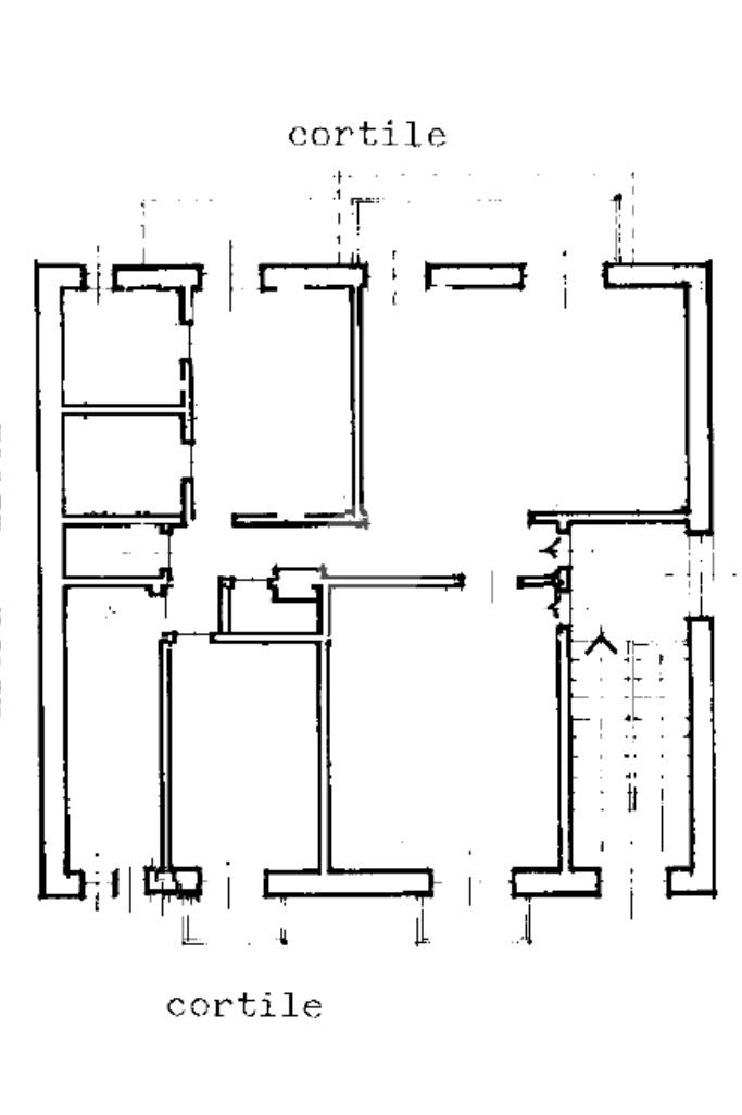
Situato in zona Oltre Po' in una tranquilla via interna chiusa, proponiamo
in vendita appartamento in villa bifamiliare circondata da un ampio cortile.

L'immobile si sviluppa su un unico livello.
Situato al primo piano l'appartamento rimane esposto sui quattro lati ed è
stato totalmente ristrutturato nel 2005.

L'ingresso tramite porta blindata con cilindro EU è diretto sul disimpegno
suddiviso a sua volta da un basso muretto dall'ampio soggiorno illuminato
da due porte finestre a condurre a un balcone che si sviluppa lungo la
facciata interna della casa.

La cucina è abitabile, molto ampia e con accesso a un proprio balconcino.

La camera matrimoniale è luminosa con bagno privato finestrato completo
di doccia e termoarredo e cabina armadio.

Il bagno principale anch'esso finestrato è completo di vasca e lavandino in
muratura.
Un'ulteriore stanza, ad oggi adibita a sala svago e gioco, può essere
sfruttata all'occorrenza come studio o cameretta.

Completa l'immobile un comodo ripostiglio con botola d'ispezione per raggiungere il sottotetto e una lavanderia.

Tutti gli infissi sono in PVC con doppi vetri.
Il riscaldamento è autonomo a metano con caldaia unica a condensazione.

Il tetto ha subito diversi interventi di manutenzione e ristrutturazione: nel
2013 son state riviste le travi con sostituzione di alcuni listelli. Tre anni fa
sono stati eliminati e sostituiti i coppi danneggiati ed è stato rivisto anche
il cornicione.

Completa l'immobile una cantina e un box auto singolo.

Posizione riservata e tranquilla, nel cuore però dell'Oltre Po' di San Mauro
Torinese a poca distanza da tutti i principali servizi e ai mezzi.

Possibilità di acquistare ulteriore appartamento da ristrutturare al piano
rialzato a 190.000 €.

Ulteriori informazioni in Agenzia: Via Del Porto 2/4 a San Mauro.

Mostra tutto

Nelle vicinanze

Trasporto pubblico Trasporto pubblico
Fermata 1ª Galleria
Fermata 1ª Galleria
2,5 Km
Fermata Raddoppio
Fermata Raddoppio
2,7 Km
Palestro
Palestro
110 m
Bertolla Est
Bertolla Est
320 m
Ricariche auto elettriche Ricariche auto elettriche
EnelX EVA+ Mercatò San Mauro Torinese
500 m
Torino Outlet Village
2,9 Km
Scuole Scuole
Scuola Primaria Statale Giorgio Catti
280 m
Scuola dell'Infanzia Freinet
310 m
Scuola Media Statale Carlo Alberto Dalla Chiesa
390 m
Scuola Elementare Nino Costa
850 m
Scuola Elementare di Stato "Salavador Allende"
1,1 Km
Farmacia Farmacia
Farmacia
460 m
Oltre Po
470 m
Farmacia San Mauro
810 m
Farmacia S. Anna
830 m
Balossino
880 m
Ospedali Ospedali
Ospedali
2,4 Km
Ospedale Civico di Settimo Torinese
2,5 Km
Supermercati Supermercati
Supermercati
370 m
Mercatò
480 m
Offertissima
1,2 Km
Supermercato IN'S
1,3 Km
è il mio mercato
1,7 Km
Negozi Negozi
Carrefour Express
410 m
Staff
480 m
Cutrera
750 m
Negozi
830 m
Ki Group
2,3 Km
Bar Bar
Bar
400 m
Caffetteria sul Po
850 m
Bar Taty
2,2 Km
Fantasia bar
2,6 Km
Ristoranti Ristoranti
Il solito Posto
820 m
Bar ristorante Pescarito
1,3 Km
Tassobarbasso
1,9 Km
Ristorante Pizzeria Mirò
2,1 Km
Ristoranti
2,1 Km
Mostra tutto

Caratteristiche

Rif.:
61128722
Piano:
1 di 2 (ultimo Piano)
Box:
1
Balconi:
3
Camere da letto:
2
Arredamento:
Assente
Mostra tutto
Prezzo Prezzo
€ 230.000
Rata mutuo Rata mutuo
€ 1.093 / mese
Spese annue Spese annue
€ 0
Proponi il tuo prezzoProponi il tuo prezzo

Classe Energetica

F
F
F
F
F
F
F
F
F
EP globale non rinnovabile:
253.28 kW h/m² anno
EP globale rinnovabile:
0.27 kW h/m² anno
EP invernale del fabbricato:
EP estiva del fabbricato:
Anno di costruzione:
1940
Riscaldamento:
Autonomo
Tipo impianto:
A radiatori
Tipo alimentazione:
Metano

Ti interessa visionare l'immobile?

Fissa un appuntamento  Fissa un appuntamento

Richiedi informazioni

Clicca su Leggi per aprire l'informativa
* Questi campi sono obbligatori

Calcola il tuo mutuo

Semplice e senza impegno
Anticipo

( % )
Mutuo

( % )

pochi semplici passi

inserisci i tuoi dati
Questionario completato
Grazie per aver richiesto un appuntamento senza impegno con un nostro Consulente del Credito e Assicurativo.

Hai inserito correttamente tutti i dati necessari e a breve riceverai una e-mail con un link da convalidare per inviare i tuoi dati.
Affiliato
Immobiliare San Mo' Sas
Via del Porto, 2/3 10099 San Mauro Torinese (TO)

Il nostro staff


  • Tommaso Ricucci
    Affiliato

  • Michela Cannone
    Coordinatrice

  • Andrea Maiolo
    Affiliato

  • Francesca Romano
    Coordinatrice
Via del Porto, 2/3 10099 San Mauro Torinese (TO)
Zona: San Mauro-La Barca
Mostra su mappa
Orari: LUNEDI' - VENERDI' 9.00 - 12.30 / 14.30 - 20.00 SABATO 9.00 - 12.30 / 14.30 - 19.00 DOMENICA CHIUSO
Affiliato
Immobiliare San Mo' Sas
Via del Porto, 2/3 10099 San Mauro Torinese (TO)

2026 Tecnocasa Franchising S.p.A. - P. IVA 08365160152 - Via Monte Bianco 60/A 20089 Rozzano (MI). Ogni agenzia ha un proprio titolare ed è autonoma. Privacy policy | Policy utilizzo | Cookie policy