Rustico in vendita

San Mauro Torinese, Via scursatone - Sambuy
€ 279.000
7 locali 7 locali
300 Mq 300 Mq
4 bagni 4 bagni

Rustico in vendita

San Mauro Torinese, Via scursatone - Sambuy

Descrizione annuncio

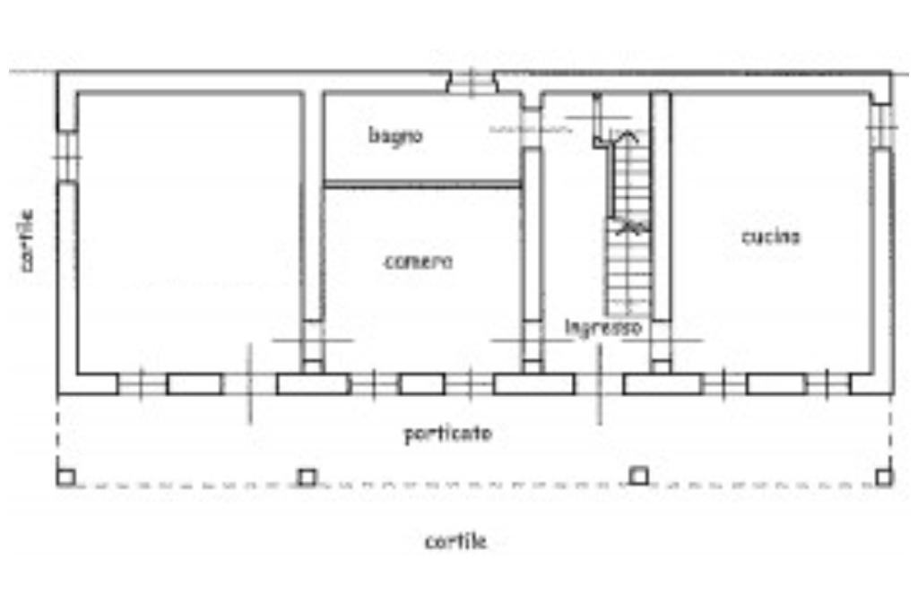
In zona Sambuy, a due passi da Castiglione Torinese, proponiamo IN ESCLUSIVA soluzione indipendente libera su quattro lati.

La soluzione si presenta con ingresso su disimpegno che smista le varie zone della casa.

Al piano terra si trova la cucina abitabile di generosa metratura.

La camera al piano, usata come studio, ci accompagna al soggiorno doppio che permette di avere un ambiente accogliente grazie al camino perfettamente funzionante.

Il bagno è finestrato con vasca in muratura.

Tramite la scala in pietra si accede al primo piano dove troviamo tre camere, di cui una con bagnetto privato; molto luminose dato l'affaccio sullo splendido terrazzo con vista sul giardino privato.

La lavanderia conduce al bagno finestrato con doccia.

Al terzo e ultimo piano è presente il sottotetto.

Gli infissi sono in doppio vetro legno e il riscaldamento è autonomo a metano per minimizzare i consumi.

Completano la proprietà una cantina doppia, due box auto e un giardino privato di circa 600 mq ottimo per godersi momenti di relax.

Ottima soluzione per chi ama la natura e la tranquillità senza rinunciare alla vicinanza ai servizi quali: supermercati, fermata del pullman blu (tratta extra-urbana), bar, tabaccheria, macelleria e a due passi dallo svincolo autostradale.

Mostra tutto

Nelle vicinanze

Trasporto pubblico Trasporto pubblico
Castiglione (Molino)
Castiglione (Molino)
60 m
Castiglione (Pedaggio)
Castiglione (Pedaggio)
620 m
Scuole Scuole
Scuola elementare "Renzo Pezzani"
1,7 Km
Scuola secondaria "Enrico Fermi"
1,9 Km
Scuola Primaria L. Borione
2,4 Km
Scuola Secondaria di 1° grado "Italo Calvino"
2,6 Km
Scuola Primaria "M.K.Gandhi"
2,7 Km
Farmacia Farmacia
Farmacia Sambuy
1,2 Km
Farmacia
1,8 Km
Supermercati Supermercati
Borello Supermercati
390 m
Viridea Settimo T.se
2,9 Km
Bar Bar
Caffetteria Papillon
2,3 Km
Caffetteria sul Po
2,8 Km
Ristoranti Ristoranti
Aprà
1,8 Km
BEFeD
2,4 Km
Mostra tutto

Caratteristiche

Rif.:
61194580
Piano:
Su più livelli di 3
Totale piani:
3
Box:
2
Posti auto:
2
Balconi:
1
Mostra tutto
Prezzo Prezzo
€ 279.000
Rata mutuo Rata mutuo
€ 1.325 / mese
Spese annue Spese annue
€ 0
Proponi il tuo prezzoProponi il tuo prezzo

Classe Energetica

G
G
G
G
G
G
G
G
G
EP globale non rinnovabile:
134.83 kW h/m² anno
EP globale rinnovabile:
0.40 kW h/m² anno
EP invernale del fabbricato:
EP estiva del fabbricato:
Anno di costruzione:
1970
Riscaldamento:
Autonomo
Tipo impianto:
A radiatori
Tipo alimentazione:
Metano

Ti interessa visionare l'immobile?

Fissa un appuntamento  Fissa un appuntamento

Richiedi informazioni

Clicca su Leggi per aprire l'informativa
* Questi campi sono obbligatori

Calcola il tuo mutuo

Semplice e senza impegno
Anticipo

( % )
Mutuo

( % )

pochi semplici passi

inserisci i tuoi dati
Questionario completato
Grazie per aver richiesto un appuntamento senza impegno con un nostro Consulente del Credito e Assicurativo.

Hai inserito correttamente tutti i dati necessari e a breve riceverai una e-mail con un link da convalidare per inviare i tuoi dati.
Affiliato
Immobiliare San Mo' Sas
Via del Porto, 2/3 10099 San Mauro Torinese (TO)

Il nostro staff


  • Tommaso Ricucci
    Affiliato

  • Michela Cannone
    Coordinatrice

  • Andrea Maiolo
    Affiliato

  • Francesca Romano
    Coordinatrice
Via del Porto, 2/3 10099 San Mauro Torinese (TO)
Zona: San Mauro-La Barca
Mostra su mappa
Orari: LUNEDI' - VENERDI' 9.00 - 12.30 / 14.30 - 20.00 SABATO 9.00 - 12.30 / 14.30 - 19.00 DOMENICA CHIUSO
Affiliato
Immobiliare San Mo' Sas
Via del Porto, 2/3 10099 San Mauro Torinese (TO)

2026 Tecnocasa Franchising S.p.A. - P. IVA 08365160152 - Via Monte Bianco 60/A 20089 Rozzano (MI). Ogni agenzia ha un proprio titolare ed è autonoma. Privacy policy | Policy utilizzo | Cookie policy